BUMPER AS

    US$0.0

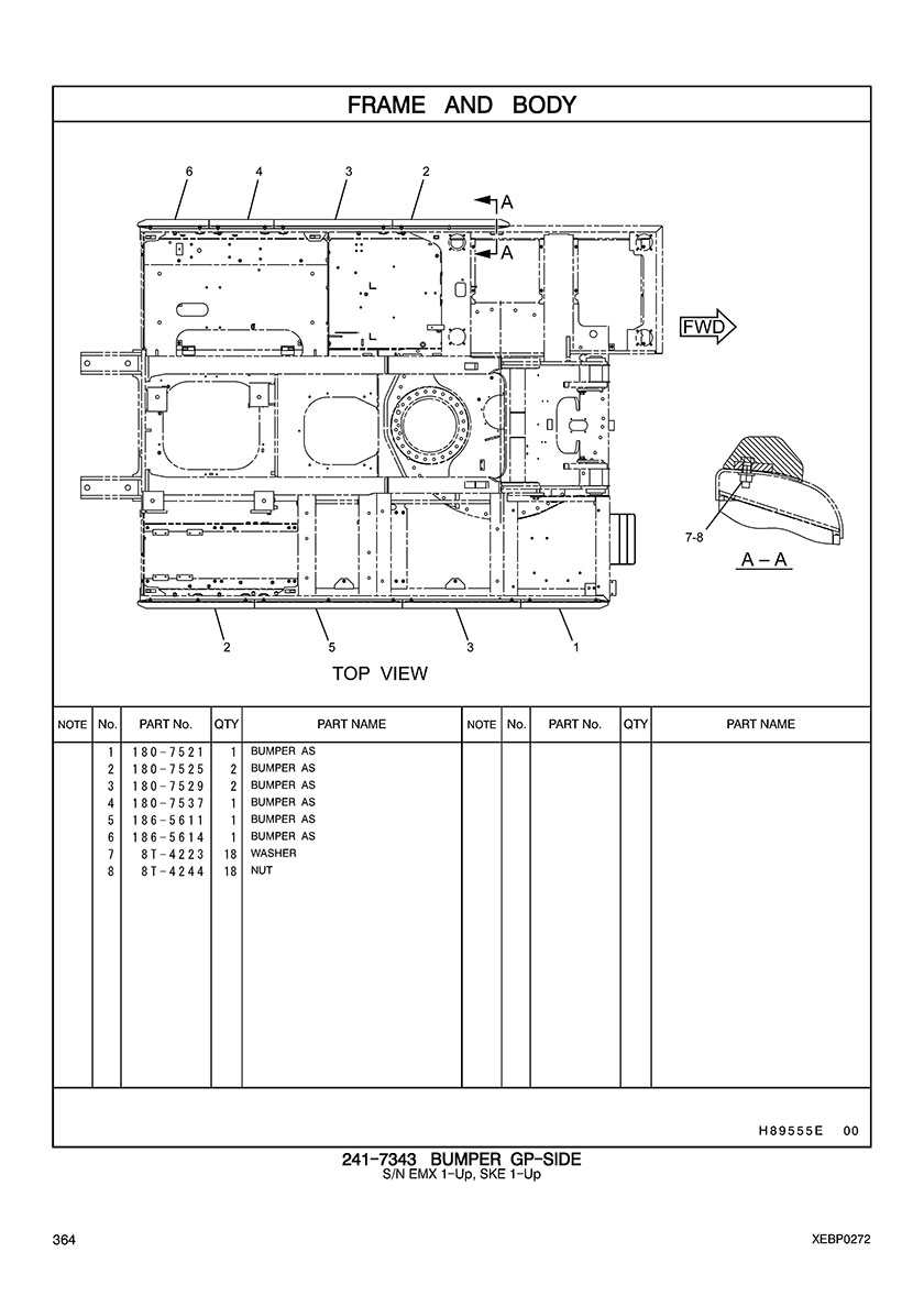
    Number:186-5611

    Model:E336D E336DL

    Engine:C9

    Weight:kg

    Specification:

    Product Details

    5 186-5611 1865611 BUMPER AS E336D E336DL